Navigation überspringen Sitemap anzeigen

Brandschutzfenster | EI30 | F30

bietet Ihnen für besondere Brandschutzanforderungen in Ihrer Wohn- oder Gewerbeimmobilien Brandschutzelemente aus Holz der Klassen EI 30, EI 60 und EI 90, zertifiziert gemäß DIN EN 16034 an. Wir fertigen hochwertige EI30 (F30) Brandschutzfenster zuverlässig, flexibel und schnell in unserem eigenen modernen Betrieb. Klassifizierung zum Feuerwiderstand, Rauchdichtheit und selbstschließende Eigenschaft nach EN 14351-1:2006+A2:2016 und EN 16034:2014.

Was sind Brandschutzfenster?

Brandschutzfenster und Brandschutzverglasungen (festverglaste Elemente) sind feuerhemmende Fenster, die einem Feuer in einem definierten Zeitraum standhalten müssen. Je nach Klassifizierung der Fensterelemente sind das 30, 60, 90 oder 120 Minuten. F30 oder EI30 bedeutet also 30 Minuten Feuerwiderstand, F90 bedeutet 90 Minuten dem Feuer standhalten.

Sie verhindern den Brandüberschlag (z. B. wichtig bei der Grenz- oder Eckbebauung) und halten den Rettungsweg frei. Unsere WiCu EI30 (F30) Holzfenster mit Öffnungsflügel ist daher auch ideal, um ggf. einen notwendigen 2. Rettungsweg zu realisieren.

Besonderheiten

Im Gegensatz zu anderen Anbietern können wir unsere Brandschutzfenster durch unseren modifizierten und patentierten Fensterbeschlag mit Flügelansichtsbreiten von nur 78 mm realisieren. Das macht das WiCu-Brandschutzfenster zu einem der filigransten auf dem Markt.

Wir produzieren für Sie 1 und 2-flg.  EI30 (F30) Öffnungsflügel mit Mittelpfosten oder als 2-flg. mit Stulp. Auch sind all unsere Brandschutzelemente miteinander und mit anderen Festverglasungen koppelbar, sodass eine Umsetzung größerer Fensterfronten möglich ist

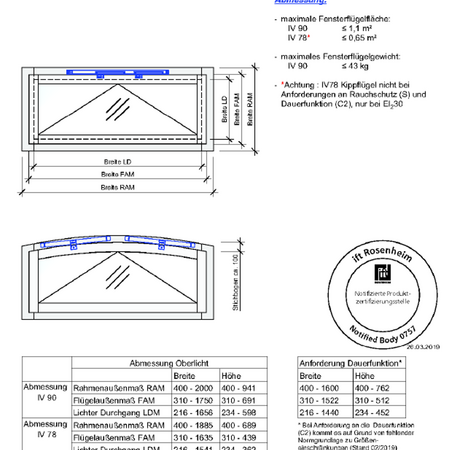
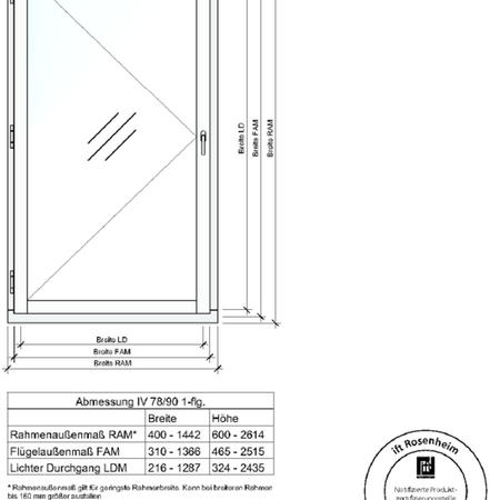
Varianten für das Brandschutzfenster F30

Sie finden hier Ausführungsvarianten und Abmessungen und Gewichte für unser WiCu Brandschutzfenster F30/EI30. Bitte klicken Sie auf die Abbildung für eine vergrößerte Darstellung.

Weitere Details zum WiCu Brandschutzfenster EI30 aus Holz

Der automatische Obentürschließer kann aus optischen Gründen auch verdeckt als ITS ausgeführt werden. In unseren Brandprüfungen wurden auch diverse Feststellanlagen erfolgreich geprüft. Alternativ besteht auch immer die Möglichkeit einen reinen Reinigungs-/Bedarfsflügel (öffnen durch eingewiesene Personen z.B. zum Putzen) für Sie zu bauen.

Wir bieten ihnen die klassische Alu-Regenschutzschiene (optional mit Holzabdecker) an oder abgestimmt auf den Denkmalschutz auch ohne Regenschutzschiene mit echtem Wetterschenkel.

Durch modernste CNC-Technik können wir Ihnen den Glasfalz in drei Varianten anbieten. Standardmäßig in 20° abgeschrägt, profiliert (Landhaus) oder auch in 32° (Kittfalzoptik). Geprüft sind auch schmale glasteilende Sprossen mit einer Breite von nur 60mm, sowie nur 26mm breite Wiener Sprossen.

Eine Verglasung als 2- oder 3-fach Isolierglas mit hohem dB-Wert, auch mit Sondergläsern wie P4A, P5A oder Sonnenschutzgläsern ist möglich

Ihr Experte

Jan Diekelmann
Tischlermeister, Brand- und Rauchschutz, Funktionstüren

Tel.: 040 / 73937524

Mir macht es Freude, Sie mit meinen Erfahrungen im Brandschutz zu unterstützen

Zum Seitenanfang